Floor Plans

Floor Plans

Clearly showcase your listing to potential buyers with professional floor plan redraws. Transform any drawing, photo, or sketch into a beautiful, accurate floor plan that helps buyers visualize the property layout.

Why Include a Floor Plan in Your Listing?

Floor plans help buyers understand how a home is laid out before they ever step inside. They remove uncertainty, answer questions photos cannot, and help buyers imagine living in the space.

Increase Buyer Interest

1 in 5 buyers skip listings without a floor plan.

Help Visualize

Listings without a floor plan are often skipped entirely. Including one helps keep buyers engaged and prevents your listing from being overlooked early in their search.

Buyer Engagement

93% of buyers say they are more likely to spend time looking at a property with a floor plan. Keep potential buyers engaged longer.

Generate 30% More Leads

Floor plans have been shown to generate 30% more interest than properties without one. Boost your listing's performance.

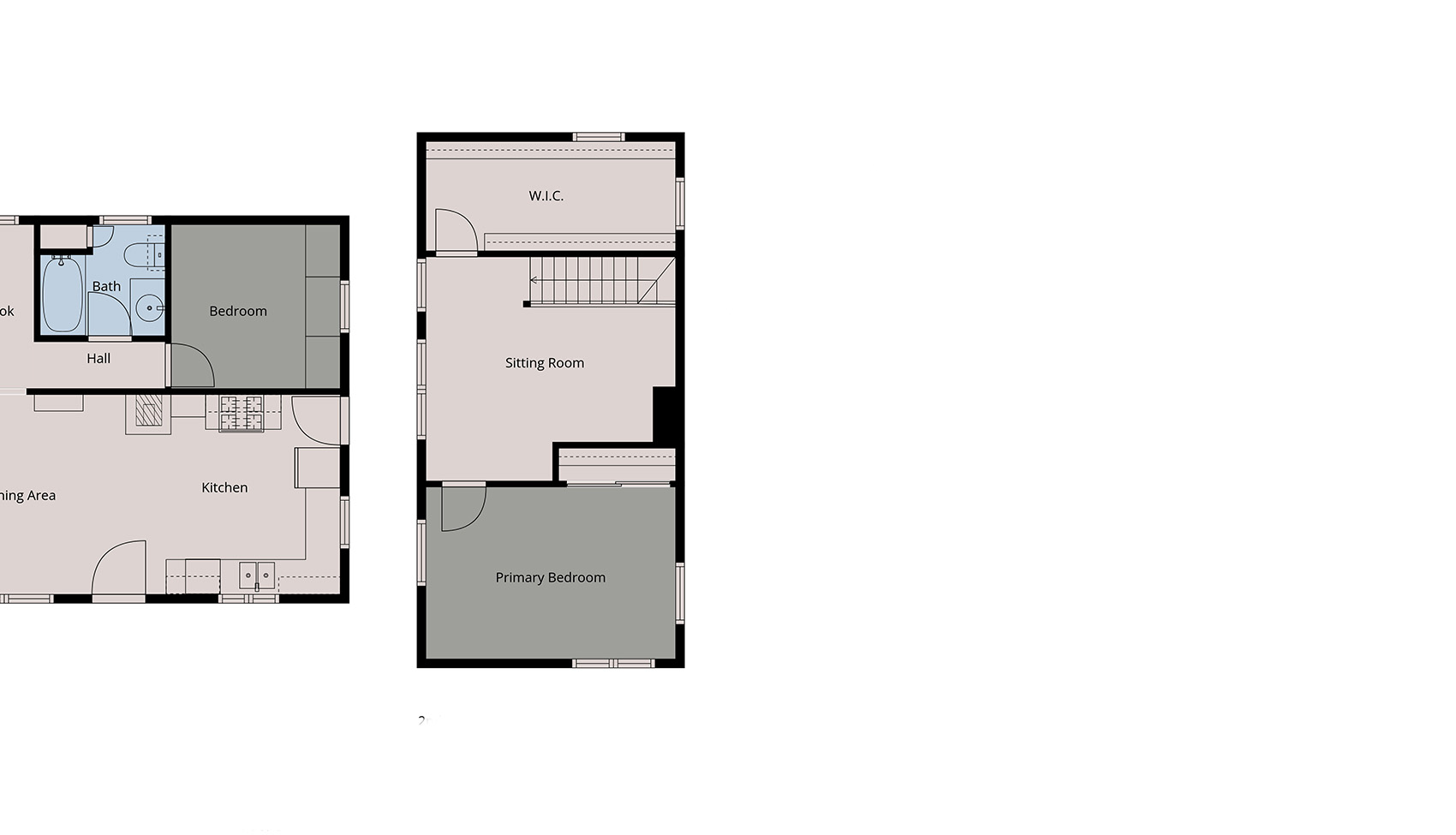
2D Essentials

2D Essentials

Straightforward floor plans that make sense instantly. Clear, simple, and designed to help buyers understand the home in seconds.

2D Full Color

2D Full Color

A full-color floor plan adds visual polish while keeping the layout crystal clear. Color-coded rooms help buyers understand function, flow, and scale instantly.

2D Textured

2D Textured

A full-color floor plan adds visual polish while keeping the layout crystal clear. Color-coded rooms help buyers understand function, flow, and scale instantly.

3D Full Color

3D Full Color

A 3D full-color floor plan offers an immersive view of the home, revealing layout, materials, and flow in a way flat plans simply can’t.

Floor Plans Buyers Actually Understand

Clear. Accurate. Fast.

Professional floor plan renders designed to help buyers get it at a glance and move with confidence.

✓ Included

Drawn to Scale

Accurate, to-scale floor plans when measurements are provided. No guessing. No warped rooms. Just a true sense of space buyers can trust.

✓ Included

Fast Turnaround

Most floor plans delivered within 24 hours. 3D and complex layouts within 48 hours. Because listings don’t wait, and neither should you.

✓ Included

Clear Room Labels

Clean room names and dimensions (when provided) so buyers instantly understand the flow, layout, and livability.

✓ Included

Furniture Placement

2D textured or 3D layouts with furniture to help buyers picture real life, not just empty walls.

✓ Included

Multiple Revisions

Need tweaks? No problem. We’ll dial it in until it’s right. Precision matters, and we stand behind the work.

✓ Add-Ons

Style it Your Way

Choose what fits the listing best: 2D black & white, 2D full color, 2D textured, 3D full color, or combined floor & site plans.

Frequently Asked Questions

Everything you need to know about our Floor Plan Redraw service.

A professional floor plan allows potential buyers to effortlessly understand the property's layout, capturing more interest in your listing and generating warmer leads. Studies show that 1 in 5 buyers would ignore a property listing completely if it didn't include a floor plan, and floor plans generate 30% more interest than properties without one.

A floor plan shows the interior layout of a property, while a site plan includes the entire land area, highlighting features like landscaping and pools. We combine both with our Floor and Site Plan Combination service for a comprehensive presentation of the property.

We offer a variety of floor plan types to cater to your specific requirements: 2D Black & White – a clear and simple layout; 2D Full Color – a visually appealing, color-coded layout; 2D Textured – showcases flooring textures and furniture placement; 3D Full Color – offers a detailed, three-dimensional view; Floor & Site Plan Combination – displays both the property and its land; and Custom floor plan templates – tailored to your agency's branding.

For most floor plan projects, we guarantee to complete them within 24 hours. For projects that require specialized work, such as 3D floor plans or more complex designs, we extend our turnaround time to 48 hours to ensure precision and quality.

No we will create the floor plan based our own measurements and your description of the property.

Yes! We offer Custom Floor Plan Templates tailored to your agency's branding. This ensures your agency's branding is consistent across all listings, with uniform placement of your logo, wall dimensions, furniture, and fixtures. Once your template is created, you can use it for all your future floor plan projects.

Yes, if you provide measurements, our team will include room dimensions on the floor plan. This helps buyers better understand the size and scale of each room in the property.

Ready to Showcase Your Property Layout?

Transform any drawing, photo, or sketch into a professional floor plan that helps buyers visualize the property. Our expert team guarantees beautiful results within 24 hours.